賃料 |
9.8万円 |
共益費/管理費 |
2,000円 |
|---|---|---|---|
敷金 |
1ヶ月 |
礼金 |
1ヶ月 |
保証金 |
- |
敷引_償却 |
- |
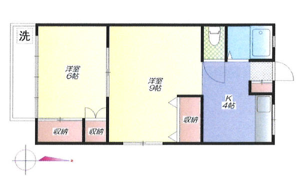
間取り |
2K |
築年月 |
1973/01(築52年) |
面積 |
40.05m²(12.11坪) |
階建 |
3階/3階建 |
住所 |
杉並区西荻北2丁目5-20 |
||
交通 |
JR総武中央線西荻窪駅まで 徒歩6分 |
お電話でのお問い合わせ
物件番号:32252
お電話でお問い合わせの際は、物件番号をお伝えください。
03-3333-5202
営業時間:9:00 ~17:30|土曜12:00~17:30
定休日:日・祝
ポイント
POINT
西荻窪賃貸 駅近の角部屋の2K。 南向きベランダで、洋室はどちらにも収納があります。
物件詳細DETAIL
建物構造 |
鉄筋コンクリート造 |
向き |
南 |
|---|---|---|---|
現況 |
空家 |
入居時期 |
即時 |
間取詳細 |
洋6、洋9、K4 |
総戸数 |
- |
保険等 |
有 23,000円 2年 |
保証会社 |
必須 賃料+管理費の100%~50% |
契約期間 |
2年 |
更新料 |
|
取引態様 |
一般媒介 |
仲介手数料 |
1ヶ月 |
駐車場 |
空有 30,000円 |
学区 |
|
諸費用 |
事務手数料 11,000円
町会費(毎月) 100円 |
入居費用(概算) |
426,800円 |
周辺環境 |
|||
特色/設備 |
二階以上、最上階、角部屋、ガスキッチン、シューズボックス、2口コンロ以上、設置可、バストイレ別、洋室、収納、バルコニー、エアコン、照明、室内洗濯機置場、バイク置場、駐輪場(1000円/月)、インターネット対応、居住用ですが事務所ご相談可能です、初期費用カード決済、陽当たり良好、室内写真は他室となります、ゴミ置場 |
||
情報更新日 |
2025年10月27日 |
次回更新予定日 |
2025年10月28日 |
※掲載されている物件データが現状と異なる場合は現状を優先します。
周辺地図MAP
有限会社クルトンハウスCOMPANY
所在地 |
東京都杉並区西荻南3丁目14-9 |
||
|---|---|---|---|
免許番号 |
東京都知事免許(5)第81566号 |
||
会員 |
(公社)全日本不動産協会
(公社)不動産保証協会
|
||
電話番号 |
03-3333-5202 |
FAX番号 |
03-3333-5210 |
営業時間 |
9:00 ~17:30|土曜12:00~17:30 |
定休日 |
日・祝 |
