賃料 |
19.5万円 |
共益費/管理費 |
15,000円 |
|---|---|---|---|
敷金 |
1ヶ月 |
礼金 |
1ヶ月 |
保証金 |
- |
敷引_償却 |
- |
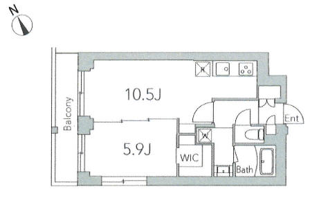
間取り |
1LDK |
築年月 |
2022/09(築3年) |
面積 |
40.47m²(12.24坪) |
階建 |
7階/7階建 |
住所 |
杉並区西荻南2丁目4-8 |
||
交通 |
JR中央線西荻窪駅まで 徒歩8分 |
お電話でのお問い合わせ
物件番号:32319
お電話でお問い合わせの際は、物件番号をお伝えください。
03-3333-5202
営業時間:9:00 ~17:30|土曜12:00~17:30
定休日:日・祝
ポイント
POINT
西荻窪賃貸 カチッとしたエントランスが特徴的です。 居室は人感センサ付きの照明器具や 2口ガスコンロのシステムキッチンなど設備面も整っています。 洋室のライティングレールは空間演出ができるので、なんだかワクワクしてしまいます。 建物までは駅からほぼ一直線でオートロック、防犯カメラ、宅配ボックスと便利で安全面に配慮された設備が備わっています。 インターネット使用料が無料の新築賃貸マンションです。
物件詳細DETAIL
建物構造 |
鉄筋コンクリート造 |
向き |
西 |
|---|---|---|---|
現況 |
居住中 |
入居時期 |
相談 |
間取詳細 |
洋5.9、LDK10.5 |
総戸数 |
- |
保険等 |
有 23,000円 2年 |
保証会社 |
必須 初回保証料:総賃料の50% 年間保証料:12,000円 |
契約期間 |
2年 |
更新料 |
新賃料の1カ月分 |
取引態様 |
代理 |
仲介手数料 |
1ヶ月 |
駐車場 |
無 |
学区 |
高井戸第四小学校
西宮中学校 |
諸費用 |
鍵交換費用 24,200円 |
入居費用(概算) |
837,500円 |
周辺環境 |
|||
特色/設備 |
二階以上、最上階、角部屋、2口コンロ以上、ガスキッチン、システムキッチン、シンク横にスペースあり、バストイレ別、追焚バス、ウォシュレット、浴室乾燥機、室内洗濯機置場、独立洗面台、室内物干し、エアコン(3台)、洋室、収納、WIクローゼット、シューズボックス、照明、ベランダ、BS、CS、インターネット対応(Wi-Fi無料)、モニター付インターホン、オートロック、ディンプルキー、Wロック、防犯カメラ、エレベータ、宅配ボックス、ゴミ置場(24時間ゴミ出し可)、駐輪場(550円/月)、バイク置場(9,900円/月)、ペット相談可(※体重15㎏以内の小型~中型犬または猫 合計2匹まで可※ペット飼育時、敷金積み増し)、外国籍相談(多言語対応コールセンター付き保証会社プラン有)、室内写真は他室となります |
||
情報更新日 |
2026年03月07日 |
次回更新予定日 |
2026年03月08日 |
※掲載されている物件データが現状と異なる場合は現状を優先します。
周辺地図MAP
有限会社クルトンハウスCOMPANY
所在地 |
東京都杉並区西荻南3丁目14-9 |
||
|---|---|---|---|
免許番号 |
東京都知事免許(5)第81566号 |
||
会員 |
(公社)全日本不動産協会
(公社)不動産保証協会
|
||
電話番号 |
03-3333-5202 |
FAX番号 |
03-3333-5210 |
営業時間 |
9:00 ~17:30|土曜12:00~17:30 |
定休日 |
日・祝 |
