賃料 |
15.6万円 |
共益費/管理費 |
9,000円 |
|---|---|---|---|
敷金 |
2ヶ月 |
礼金 |
1ヶ月 |
保証金 |
- |
敷引_償却 |
- |
間取り |
2LDK |
築年月 |
1987/08(築38年) |
面積 |
56.7m²(17.15坪) |
階建 |
3階/3階建 |
住所 |
杉並区南荻窪2丁目6-8 |
||
交通 |
JR中央線西荻窪駅まで 徒歩11分 |
お電話でのお問い合わせ
物件番号:32338
お電話でお問い合わせの際は、物件番号をお伝えください。
03-3333-5202
営業時間:9:00 ~17:30|土曜12:00~17:30
定休日:日・祝
ポイント
POINT
西荻窪賃貸 ルーフバルコニーのある収納豊富な角部屋2LDK。 玄関にアルコープ、ルーフバルコニーともう一面バルコニーがあるのでヌケ感があって風の通りがよい間取り。 キッチンもしっかり区画されていて、3口グリル付システムキッチンなど設備充実。 楽器ご相談可能です。 *室内写真は他室となります。
物件詳細DETAIL
建物構造 |
鉄筋コンクリート造 |
向き |
|
|---|---|---|---|
現況 |
居住中 |
入居時期 |
予定 |
間取詳細 |
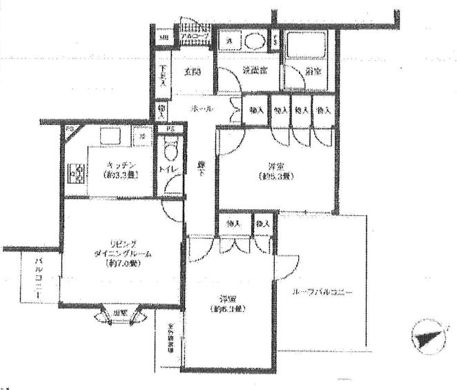
(3F)その他7.0、(3F)K3.3、(3F)洋5.3、(3F)洋5.3 |
総戸数 |
16戸 |
保険等 |
有 |
保証会社 |
必須 エポスカード 初回総賃料50%、毎月総賃料の1.5%の保証料がかります |
契約期間 |
2年 |
更新料 |
新賃料1ヶ月 |
取引態様 |
仲介 |
仲介手数料 |
1ヶ月 |
駐車場 |
無 |
学区 |
荻窪小学校
神明中学校 |
諸費用 |
鍵交換費用 48,400円
退去時室内クリーニング費 82,000円 |
入居費用(概算) |
804,600円 |
周辺環境 |
|||
特色/設備 |
二階以上、角部屋、最上階、2口コンロ以上、ガスキッチン、シンク横にスペースあり、システムキッチン、バストイレ別、ウォシュレット、追焚バス、浴室乾燥機、室内洗濯機置場、独立洗面台、エアコン、洋室、収納、シューズボックス、バルコニー、ルーフバルコニー、モニター付インターホン、オートロック、Wロック、エレベータ、宅配ボックス、ゴミ置場、駐輪場(1住戸1台無料)、CATV、BS、CS、インターネット対応、出窓、、室内写真は他室となります |
||
情報更新日 |
2025年12月24日 |
次回更新予定日 |
2025年12月25日 |
※掲載されている物件データが現状と異なる場合は現状を優先します。
周辺地図MAP
有限会社クルトンハウスCOMPANY
所在地 |
東京都杉並区西荻南3丁目14-9 |
||
|---|---|---|---|
免許番号 |
東京都知事免許(5)第81566号 |
||
会員 |
(公社)全日本不動産協会
(公社)不動産保証協会
|
||
電話番号 |
03-3333-5202 |
FAX番号 |
03-3333-5210 |
営業時間 |
9:00 ~17:30|土曜12:00~17:30 |
定休日 |
日・祝 |
