賃料 |
8.8万円 |
共益費/管理費 |
- |
|---|---|---|---|
敷金 |
1ヶ月 |
礼金 |
1ヶ月 |
保証金 |
- |
敷引_償却 |
- |
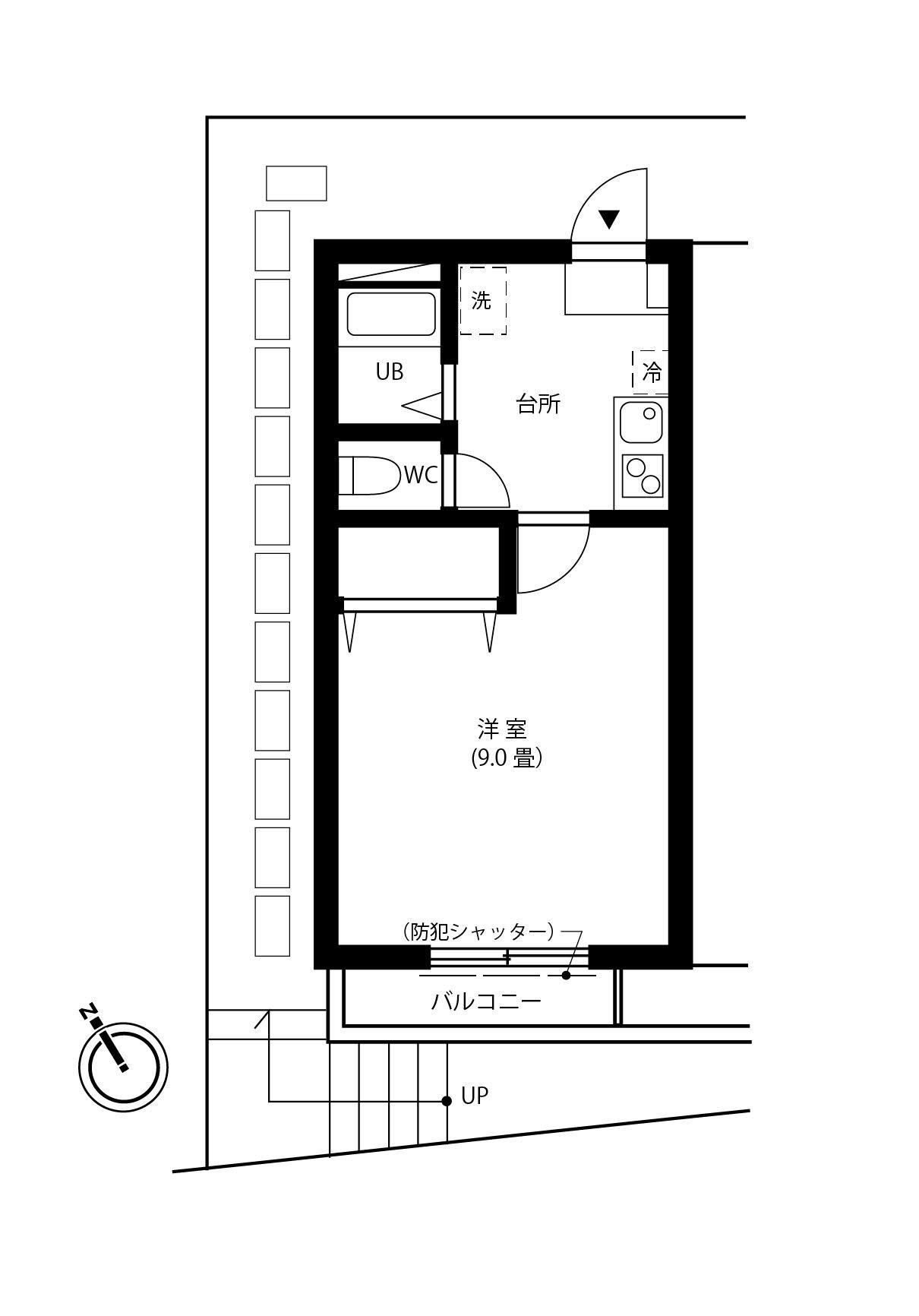
間取り |
1K |
築年月 |
2001/07(築24年) |
面積 |
26.79m²(8.1坪) |
階建 |
1階/2階建 |
住所 |
東京都杉並区上荻2丁目11-6 |
||
交通 |
JR中央線西荻窪駅まで 徒歩16分
JR中央線荻窪駅まで 徒歩13分 |
お電話でのお問い合わせ
物件番号:32348
お電話でお問い合わせの際は、物件番号をお伝えください。
03-3333-5202
営業時間:9:00 ~17:30|土曜12:00~17:30
定休日:日・祝
ポイント
POINT
西荻窪賃貸、南向きの1K。
1階のお部屋ですが、道路面より約1m高い設計のため、通行人の目線を気にせず、南向きの明るさと開放感を感じられます。
洋室はドアやクローゼットの干渉が少ない、効率の良い間取り。お気に入りの家具を主役にしたレイアウトも楽しめます。
IHシステムキッチンとウォシュレットは新規交換済み。ピクチャーレールも備わっており、さりげなく嬉しいポイントです。
環八を越える立地ですが、JR中央線・荻窪駅の方が近く、実はアクセスの良さも魅力。
※駐輪は応相談となります。写真では伝わりにくい明るさと目線の抜け感を、ぜひ現地でご体感ください。
物件詳細DETAIL
建物構造 |
軽量鉄骨造 |
向き |
南 |
|---|---|---|---|
現況 |
空室 |
入居時期 |
即時 |
間取詳細 |
洋9、DK3 |
総戸数 |
2戸 |
保険等 |
要 2年 |
保証会社 |
必須 アクシスコミュニティ 初回保証料:保証人有・賃料等の40%~/保証人無・賃料等の60%~ 継続保証料:10,000円/年 |
契約期間 |
2年 |
更新料 |
新賃料1ヶ月 |
取引態様 |
専任媒介 |
仲介手数料 |
1ヶ月 |
駐車場 |
空無 |
学区 |
|
諸費用 |
鍵交換費用 - |
入居費用(概算) |
360,800円 |
周辺環境 |
|||
特色/設備 |
角部屋・陽当たり良好、2口IHコンロシステムキッチン、バストイレ別・ウォシュレット、室内洗濯機置場、洋室・収納・シューズボックス、エアコン・照明、モニター付インターホン・防犯シャッター、CATV・インターネット対応(J-COMインマイルーム ネット無料)、防犯カメラ、ベランダ、室内物干し、仲介手数料半額 |
||
情報更新日 |
2026年03月09日 |
次回更新予定日 |
2026年03月10日 |
※掲載されている物件データが現状と異なる場合は現状を優先します。
周辺地図MAP
有限会社クルトンハウスCOMPANY
所在地 |
東京都杉並区西荻南3丁目14-9 |
||
|---|---|---|---|
免許番号 |
東京都知事免許(5)第81566号 |
||
会員 |
(公社)全日本不動産協会
(公社)不動産保証協会
|
||
電話番号 |
03-3333-5202 |
FAX番号 |
03-3333-5210 |
営業時間 |
9:00 ~17:30|土曜12:00~17:30 |
定休日 |
日・祝 |
