賃料 |
28.6万円 |
共益費/管理費 |
- |
|---|---|---|---|
敷金 |
4ヶ月 |
礼金 |
1ヶ月 |
保証金 |
- |
敷引_償却 |
20% |
築年月 |
- |
面積 |
101.38m²(30.66坪) |
階迄 |
3階建 |
||
所在地 |
杉並区下井草3丁目 |
||
交通 |
西武新宿線下井草駅まで 徒歩6分 |
お電話でのお問い合わせ
物件番号:32400
お電話でお問い合わせの際は、物件番号をお伝えください。
03-3333-5202
営業時間:9:00 ~17:30|土曜12:00~17:30
定休日:日・祝
ポイント
POINT
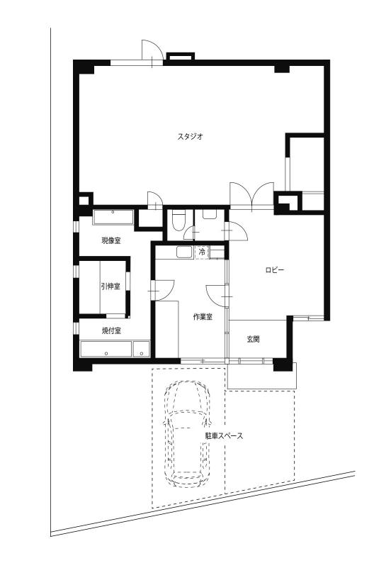
約30坪・制作スペースを内包した事務所区画。
西武新宿線・下井草駅徒歩6分。
第一種低層住居専用地域の落ち着いた住宅街に位置する1階区画です。
貸室全体は約30坪。
奥には約15坪、天井高約3.5mの元フォトスタジオ区画あり。
窓のない遮光空間のため、撮影や映像制作、模型制作等にも対応可能です。
手前スペースは事務所利用や打合せスペースとして。
制作とデスクワークを同一拠点で完結できます。
駐車場1台分付き。(車種により2台※現地ご確認ください)
物件詳細DETAIL
建物構造 |
鉄筋コンクリート造 |
坪賃料 |
9,325円 |
|---|---|---|---|
現況 |
空家 |
引渡時期 |
即時 |
保険等 |
有 3年 |
保証会社 |
必須 アクシスコミュニティ 初回保証料:連帯保証人あり 賃料等の50%~・連帯保証人なし 同100%~ 継続保証料:10,000円/年 |
契約期間 |
3年 |
更新料 |
新賃料1ヶ月 |
取引態様 |
専任媒介 |
仲介手数料 |
1ヶ月 |
諸費用 |
駐車場 |
空無 |
|
周辺環境 |
|||
特色/設備 |
トイレ、駐車場(1台)、駐輪応相談、1階、飲食不可 ※貸主は適格請求書発行事業者ではありません。 |
||
情報更新日 |
2026年03月03日 |
次回更新予定日 |
2026年03月04日 |
※掲載されている物件データが現状と異なる場合は現状を優先します。
有限会社クルトンハウスCOMPANY
所在地 |
東京都杉並区西荻南3丁目14-9 |
||
|---|---|---|---|
免許番号 |
東京都知事免許(5)第81566号 |
||
会員 |
(公社)全日本不動産協会
(公社)不動産保証協会
|
||
電話番号 |
03-3333-5202 |
FAX番号 |
03-3333-5210 |
営業時間 |
9:00 ~17:30|土曜12:00~17:30 |
定休日 |
日・祝 |
